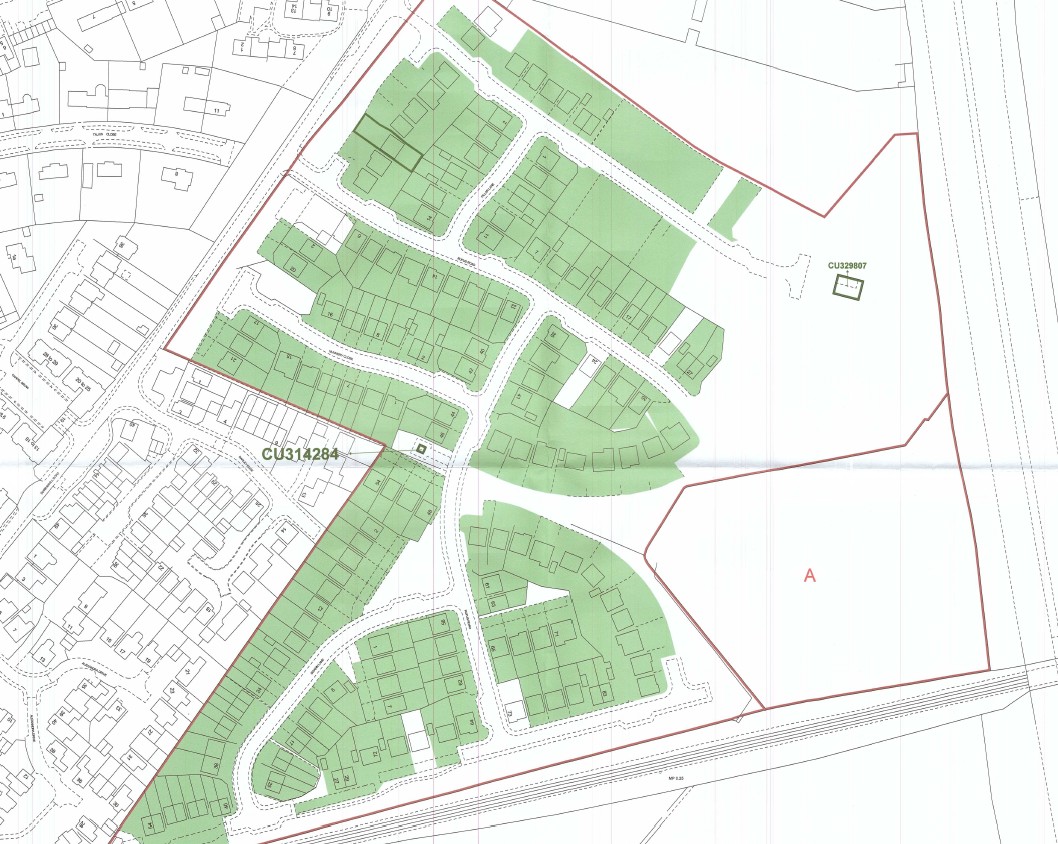
The site extends overall to approximately 4.1 acres and is situated off Rufus Road on the easterly outskirts of the City with easy access to the M6 at junction 43. It is marked A on the plan. The site is allocated for residential development (U18) in the Cumberland Council local plan for 150 units, however Taylor Wimpey has already delivered 198 units on their Phase 1 scheme directly to the East which is part of the same allocation. Taylor Wimpey previously submitted a planning application for 15 units on the site however this application was not determined and has now been finally disposed. Interested parties should make their own enquiries to Cumberland Council regarding their proposed use.
What3words location ///sample.punchy.hooked
Tenure
See Legal Pack
Services
Interested parties are invited to make their own enquiries to the relevant authorities as to the availability of the services.
Local Authority
Cumberland Council
Additional Fees
Admin charge - 1.2% inc VAT of the purchase price, subject to a minimum of £1500 inc VAT, payable on exchange of contracts.
Disbursements - Please see the legal pack for any disbursements listed that may become payable by the purchaser on completion.
Agent Note
In order to be able to purchase a property in the UK all agents have a legal requirement to conduct identity checks on all customers involved in the transaction to fulfil their obligations under anti money laundering regulations. Please ask the branch for further details.

01228 510 552
