An imposing, detached house with gardens and outbuildings situated in this coastal village between Maryport and Workington. This Grade II* listed building was built over 250 years ago, it is the subject of a dangerous structure notice and is in need of total restoration hence it being offered with a nil reserve price. It offers a tremendous opportunity to acquire a property of special architectural and historic interest and create an individual family home. There will be no internal viewings.
There will be no viewings at this property
What3words location ///flipper.depth.tunnel
Ground Floor
Hall
Reception Room 6.2m x 4.4m
Reception Room 4.4m x 3.4m
Kitchen 5.6m x 5.2m
Pantry 5.7m x 3.3m
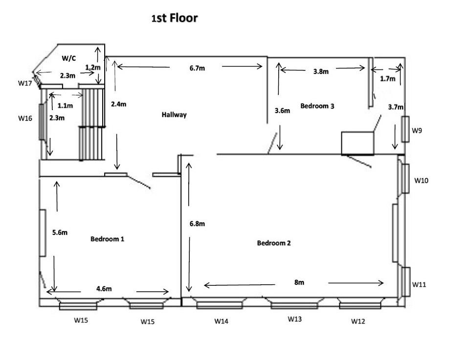
First Floor
Landing
Bedroom 5.6m x 4.6m
Bedroom 8m x 6.2m
Bedroom 3.8m x 3.6m leading to
Bathroom 3.7m x 1.7m
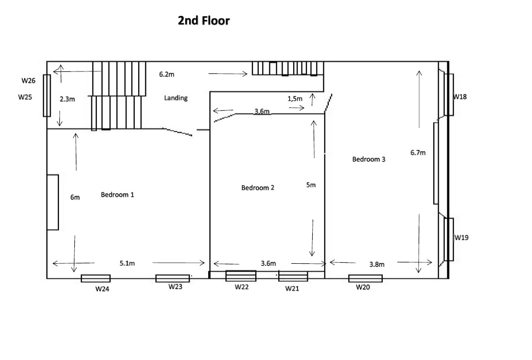
Second Floor
Landing
Bedroom 6m x 5.1m
Bedroom 5m x 3.6m
Bedroom 6.7m x 3.8m
Outside
Driveway to courtyard with adjoining outbuildings including kennels, lawned garden to front and side of property - see the title plan.
Dangerous structure notice
The property is the subject of a dangerous structure notice DS/2025/0036.
Interested parties should make their own enquiries to Cumberland Council regarding their proposed changes, inspect the legal pack and consult their own independent legal adviser.
Tenure
See Legal Pack
Services
Interested parties are invited to make their own enquiries to the relevant authorities as to the availability of the services.
Local Authority
Cumberland Council
Additional Fees
Admin charge - 1.2% inc VAT of the purchase price, subject to a minimum of £1500 inc VAT, payable on exchange of contracts.
Disbursements - Please see the legal pack for any disbursements listed that may become payable by the purchaser on completion.
Agent Note
In order to be able to purchase a property in the UK all agents have a legal requirement to conduct identity checks on all customers involved in the transaction to fulfil their obligations under anti money laundering regulations. Please ask the branch for further details.

01228 510 552
