A unique, detached rural property occupying a delightful rural site of just under an acre in a sought after area 4 miles south of Dalston and 9 miles from Carlisle. The original 18th century barn was converted in the 1970s and enhanced with an architect-designed extension which features two connecting corridors with floor to ceiling windows around an inner courtyard. The large kitchen diner has expansive windows looking out onto the south-facing garden and views across the fields. The property flooded in May 2024 and in the wake of that the current owners embarked on an extensive modernisation project. This included creating a master bedroom suite with dressing room and en suite, an extended laundry, and a second family bathroom. Work has begun to install a wet underfloor heating system, the cavity wall insulation has been replaced and a damp-proof membrane fitted to the majority of solid stone walls. All drainage has also been updated and modernised. The outside space includes a chicken hutch and run, hardstandings for both a greenhouse and a shed and extensive gardens. This part-complete renovation offers a tremendous opportunity to provide a spacious family home.
What3words location ///duration.broth.curbed
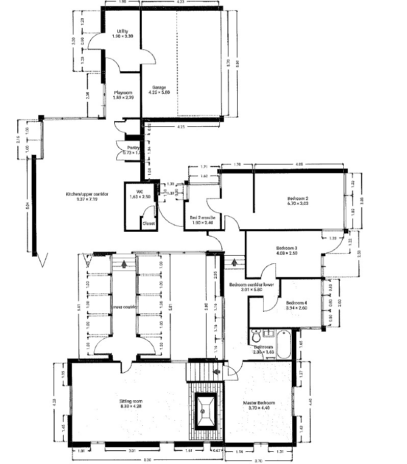
Entrance Hall
Sitting Room 22'6 x 14'
with inglenook style fireplace and access to
First Floor Study/Bedroom 14'3 x 11'9 and
Mezzanine 11' x 7'6
Dining Kitchen 23'9 x 15'6
with access to
Double Garage 20' x 18'
with electric roller door
Bedroom Wing comprises:-
Bedroom 15'9 x 10' with En-suite & Dressing Room
Bedroom 13' x 8'6
Bedroom 13' x 8'6 max
Bedroom 14'6 x 12'3
Family Bathroom 7'9 x 7'3
Outside
The delightful garden site is accessed by a private bridge across the River Roe and extends overall to just under an acre with lawns and open fields around - see the title plan.
Council Tax Band
Current rating G
Tenure
Freehold
Services
Interested parties are invited to make their own enquiries to the relevant authorities as to the availability of the services.
Local Authority
Cumberland Council
Additional Fees
Admin charge - 1.2% inc VAT of the purchase price, subject to a minimum of £1500 inc VAT, payable on exchange of contracts.
Disbursements - Please see the legal pack for any disbursements listed that may become payable by the purchaser on completion.
Agent Note
In order to be able to purchase a property in the UK all agents have a legal requirement to conduct identity checks on all customers involved in the transaction to fulfil their obligations under anti money laundering regulations. Please ask the branch for further details.

01228 510 552
