This characterful cottage is situated only a few minutes walk away from the cobbled town centre where there is a wide choice of amenities. Providing accommodation that would suit a range of buyers and would benefit from general modernisation.
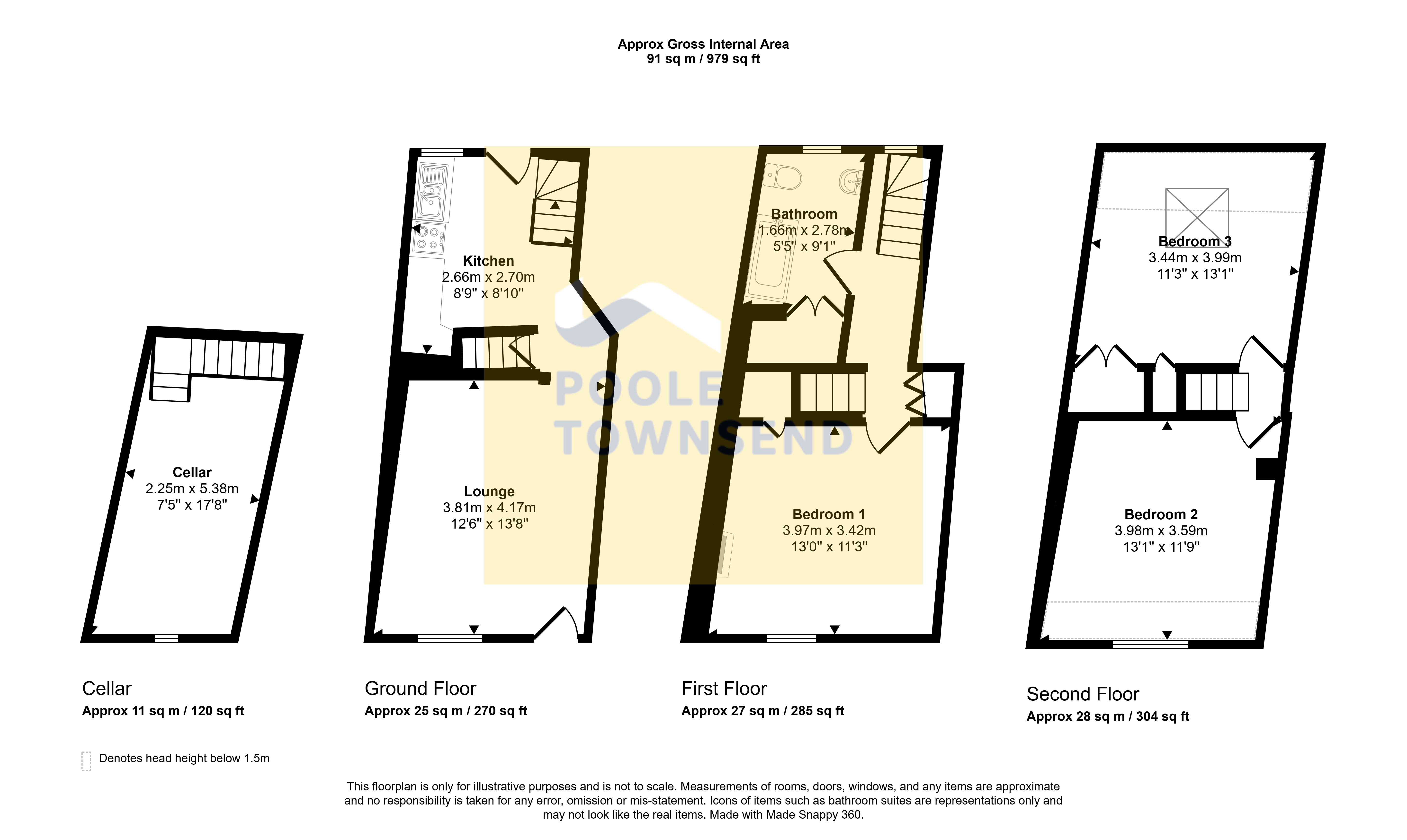
Ground Floor
Lounge - 12'6x13'8
Kitchen - 8'9x8'10
First Floor
Bedroom - 13'10x11'3
Bathroom - 5'5x9'1
Second Floor
Bedroom - 13'1x11'9
Bedroom - 13'3x13'1
Cellar - 7'5x17'8
Viewings
Viewing arrangements, please call Poole Townsend on 01229 588111
EPC Rating
Current rating D
Council Tax Band
Current rating A
Tenure
Freehold
Services
Interested parties are invited to make their own enquiries to the relevant authorities as to the availability of the services.
Local Authority
Westmorland and Furness Council
Additional Fees
Admin charge - 1.2% inc VAT of the purchase price, subject to a minimum of £1500 inc VAT, payable on exchange of contracts.
Disbursements - Please see the legal pack for any disbursements listed that may become payable by the purchaser on completion.
Agent Note
In order to be able to purchase a property in the UK all agents have a legal requirement to conduct identity checks on all customers involved in the transaction to fulfil their obligations under anti money laundering regulations. Please ask the branch for further details.

01228 510 552
