A spacious three bedroom, three story house situated in a desirable location within waking distance of the town centre with great transport links and offering lots of great potential for updating and improvements.
Ground floor
Dining room - 8'6x9'7
Storage - 6'2x4'11
Lounge - 11'9x10'4
Kitchen - 6'9x11'10
Boiler room
WC
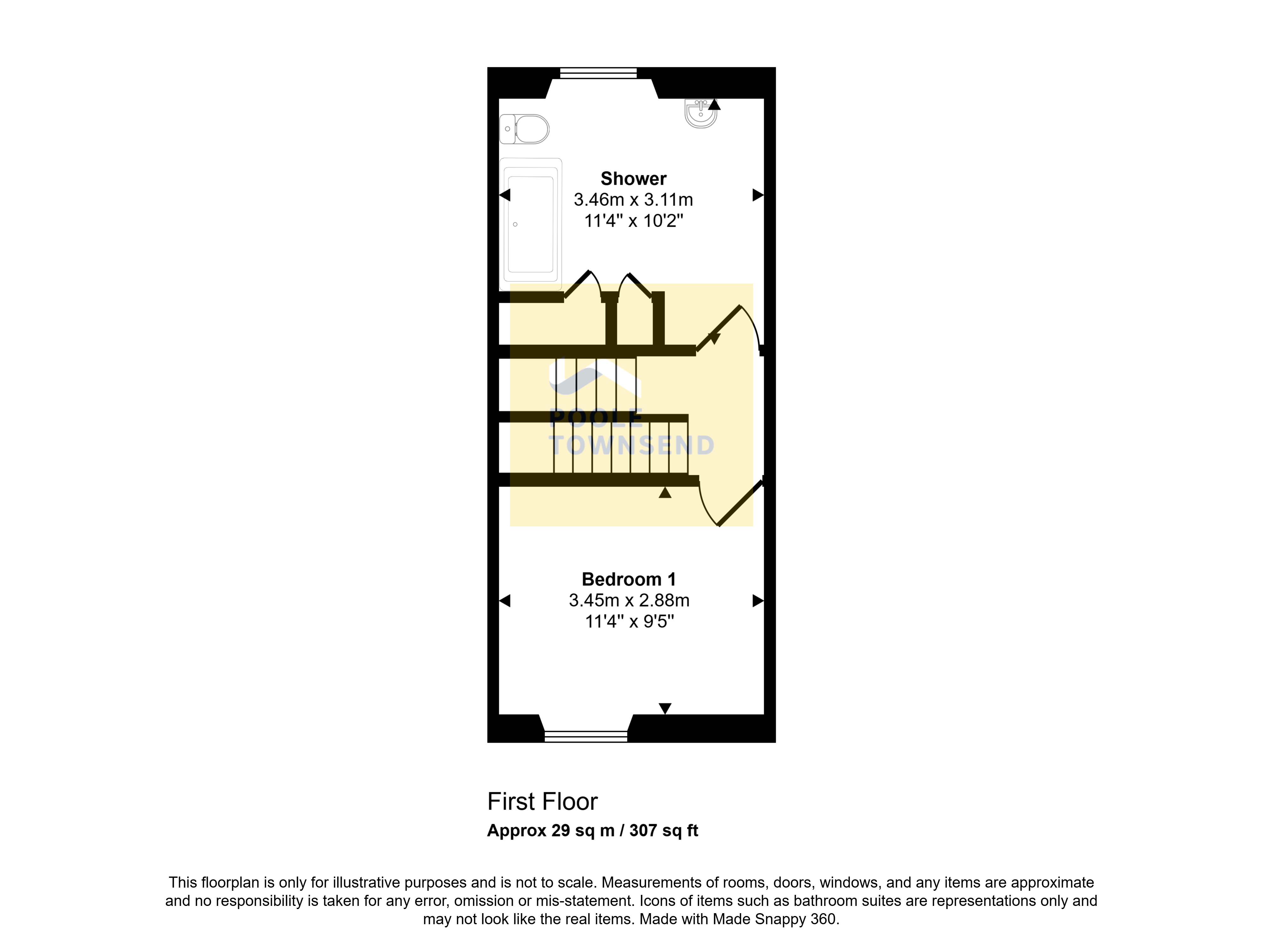
First Floor
Bedroom - 11'4x9'5
Shower room - 11'4x10'2
Second Floor
Bedroom - 11'4x9'4
Bedroom 11'5x10'5
Viewing
To arrange a viewing, call Poole Townsend on 01229 588111
Council Tax Band
Current rating B
Tenure
See Legal Pack
Services
Interested parties are invited to make their own enquiries to the relevant authorities as to the availability of the services.
Local Authority
Westmorland and Furness Council
Additional Fees
Admin charge - 1.2% inc VAT of the purchase price, subject to a minimum of £1500 inc VAT, payable on exchange of contracts.
Disbursements - Please see the legal pack for any disbursements listed that may become payable by the purchaser on completion.
Agent Note
In order to be able to purchase a property in the UK all agents have a legal requirement to conduct identity checks on all customers involved in the transaction to fulfil their obligations under anti money laundering regulations. Please ask the branch for further details.

01228 510 552
