Two bedroom terrace cottage set within a rural village with views onto the village green. This well appointed property is in a popular location and would make an ideal investment property. Comprises: porch, lounge and dining kitchen to the ground floor, 2 bedrooms and bathroom to the first floor and fully boarded loft space.
Ground floor
Porch - 10'0 x 4'11
Living room - 10'0 x 13'4
Kitchen/Dining room - 10'2 x 12'6
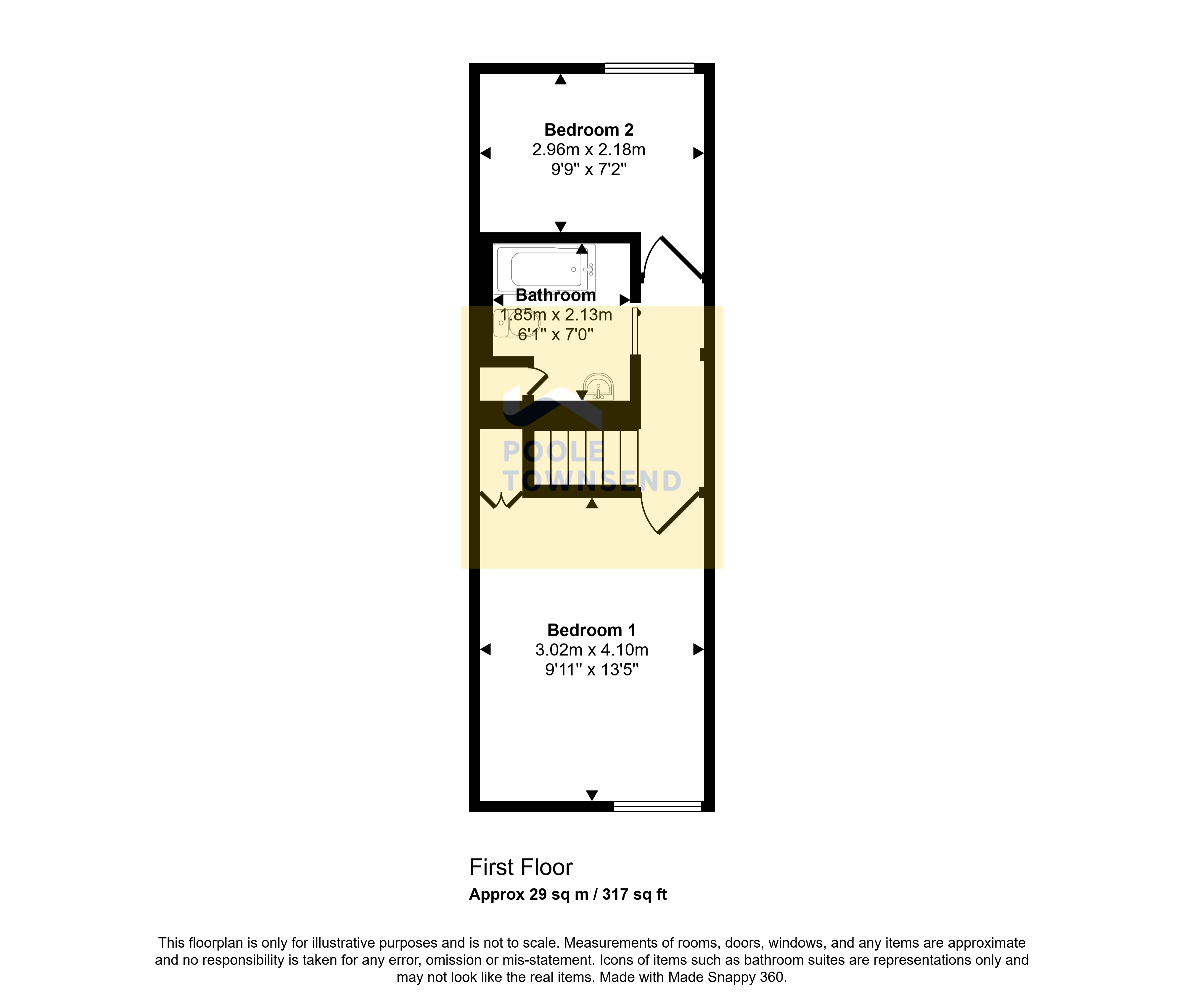
First floor
Bedroom - 9'11 x 13'5
Bedroom 9'9 x 7'2
Bathroom - 6'1 x 7'0
Outside
Store - 10'2 x 7'2
Viewing
To arrange a viewing, please call Poole Townsend on 01229 588111
EPC Rating
Current rating F
Council Tax Band
Current rating B
Tenure
Freehold
Services
Interested parties are invited to make their own enquiries to the relevant authorities as to the availability of the services.
Local Authority
Westmorland and Furness Council
Additional Fees
Admin charge - 1.2% inc VAT of the purchase price, subject to a minimum of £1500 inc VAT, payable on exchange of contracts.
Disbursements - Please see the legal pack for any disbursements listed that may become payable by the purchaser on completion.
Agent Note
In order to be able to purchase a property in the UK all agents have a legal requirement to conduct identity checks on all customers involved in the transaction to fulfil their obligations under anti money laundering regulations. Please ask the branch for further details.

01228 510 552
